Používame cookies

Súbory cookie a ďalšie technológie sledovania používame na zlepšenie vášho zážitku z prehliadania našich webových stránok, na to, aby sme vám zobrazovali prispôsobený obsah a cielené reklamy, na analýzu návštevnosti našich webových stránok a na pochopenie toho, odkiaľ naši návštevníci prichádzajú. Viac info

Nová 4i chata s galériou v lese - Tále Nízke Tatry

Popis nehnuteľnosti

Zdieľať na Facebooku

Chata sa nachádza v prekrásnej scenérii Nízkotatranského národného parku lemovanej vrchmi Dereše, Chopok a Ďumbier, iba 15 min pešo od Hotelov Partizán a Stupka. Je situovaná na južnom - slnečnom pozemku o výmere 543 m2, v lesnom prostredí, s dokonalým pocitom súkromia.

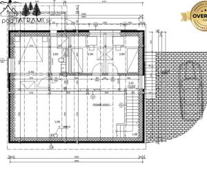
Murovaná stavba o zastavanej ploche 80 m2 a úžitkovej ploche 130 m2 je pred kolaudáciou a bude na liste vlastníctva vedená ako rekreačná chata.

Na prízemí sa nachádza priestranná vstupná chodba, technická miestnosť so svojím vchodom, toaleta a krásna slnečná obývacia izba spojená s kuchyňou otvorená až po strechu chaty. V podkroví sú tri samostatné priestranné izby prístupné z galérie a kúpeľňa s toaletou.

Na pozemku pri chate je dostatok miesta na vybudovanie posedenia s výhľadom na okolitú prírodu. Chata je vykurovaná elektrickým kúrením a je tu predpríprava na krb. Je napojená na elektrinu a vodovod a odpad je vyvedený žumpy. Ku chate vedie spevnená cesta. Parkovanie je riešené na pozemku pri chate.

Chata je vhodná na rodinnú rekreáciu aj na krátkodobý prenájom.
15min pešo je vzdialený Hotel Partizán a Stupka s reštauráciami a wellness (partizan.sk _tale.sk)
4km vzdialené je 18 jamkové majstrovské golfové ihrisko Gray Bear a 9 jamkové obojstranne hrateľné golfové ihrisko Little Bear s detskou golfovou akadémiou aj nočným golfom. V tomto areáli je taktiež lyžiarske stredisko s umelým zasnežovaním, večerným aj ranným fresh track lyžovaním aj bežkárskou traťou (tale.sk).
6km vzdialené je obľúbené lyžiarske stredisko s umelým zasnežovaním, večerným aj ranným fresh track lyžovaním, ktoré sa v letných mesiacoch využíva ako bike park (kopeczabavy.sk).
7km vzdialené je najväčšie lyžiarske stredisko na Slovensku, ktoré ponúka viac ako 50km upravených tratí na južnej a severnej strane Chopku a v lete sa meniace na perfektnú destináciu pre rodinné výlety s rôznymi atrakciami (jasna.sk)

Podrobné informácie a ďalšie ponuky nájdete na CHATYpodTATRAMI.sk aj na našich sociálnych sieťach.

Vlastnosti

Status:
aktívne
Vlastníctvo:
osobné
Plocha pozemku:
543 m2
Úžitková plocha:
130 m2
Zastavaná plocha:
115 m2
Stav:
novostavba
Počet izieb:
4
Energetický certifikát:
žiadne
Rok výstavby:
2024
Počet poschodí od prízemia vyššie:
1
Celková plocha:
543 m2
Inžinierske siete:
áno
Voda:
áno
Elektrika:
áno
Kanalizácia:
áno
Voda - na pozemku - vodný zdroj:
áno
Kanalizácia - na pozemku - žumpa:
áno
Internet:
áno

Hypotekárna kalkulačka

339 000 €
Interné ID: 164
Ulica: Tále
Obec: Bystrá
Okres: Brezno
Kraj: Banskobystrický kraj
Druh: Domy
Typ: Predaj
Typ domu: Chata

Radi Vám poradíme